
Niala2
Project Info
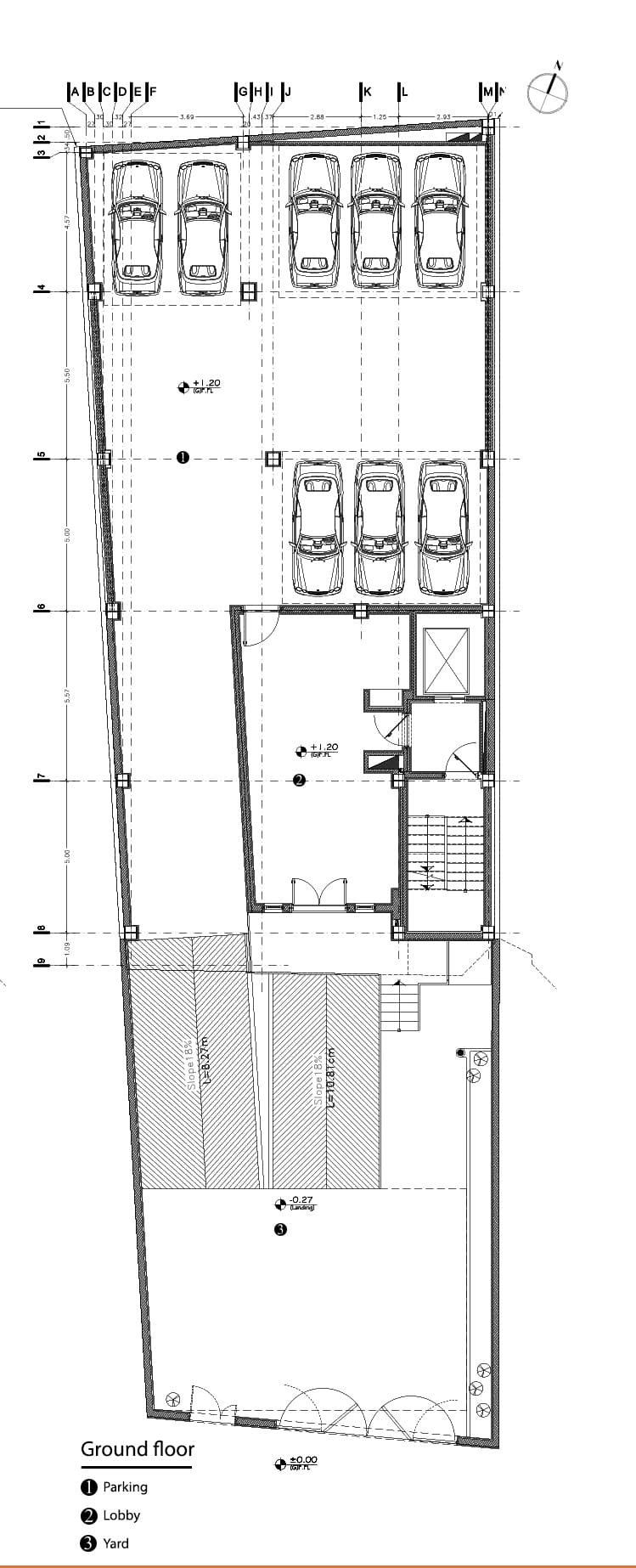
Plot Area
520 m2
Constructed Area
1681 m2
Location
Tehran,iran
Year
2018
Design Ideas
Tehran is a city of dualities—mountain and desert, ancient and modern, dense and open. In this layered environment, architecture must do more than respond—it must resonate. This building stands as a refined urban gesture, bridging tradition and modernity with confidence and care.
Among the design challenges in this project, the stretched layout of the property and a disagreement between the design team and the customer might be mentioned.

The customer insisted on a classical design rather than a modern Iranian one provided by the design team. Finally, both sides agreed on a neo-classic design.

According to fire regulations and placement of the staircase on the outer space, through a symmetrical design, the staircase was concealed.



Through framing of space cavities and indentations a harmonic look was achieved.


In the upper section of the façade, inspired by old designs of houses in Tehran, wooden canopies were installed.



Classical motifs—arched niches, framed facades, rhythmic pilasters—are not copied but reimagined.

These elements pay homage to Persian architectural heritage, blending softly into a modern residential form.





More than a home, this structure contributes to the street, the skyline, and the cultural dialogue of Tehran. It listens, it respects, and it quietly elevates the architectural language of its neighborhood.