
Niala3
Project Info
Plot Area
659 m2
Constructed Area
3376 m2
Location
sharifimanesh deadend, andarzgoo blvrd,Tehran,iran
Year
2020
Design Ideas
The region's architectural past and previous initiatives, including Disas, served as the basis for the first sketches. Even yet, the design took into account every concern, and the employer's initial viewpoint was also drawn in.
The customer requested that the design shift from modern to classic, but the design team made an effort to steer clear of Tehran's commercial architecture while keeping the historical context in mind.

As a result, the finished design was influenced by both classical and ancient Iranian architecture.

The building incorporates classical elements such as arched windows, decorative moldings, and symmetrical design is showing the neoclassical influences on building.


The building integrates well with its neighbors but stands out due to its height and refined detailing.


The beige-colored facade enhances its elegant and timeless appearance while The Dark-colored materials on the lower level contrast with the lighter upper floors, visually grounding the building.







It reflects traditional Persian architecture in a modern form, suitable for Tehran's residential neighborhoods.


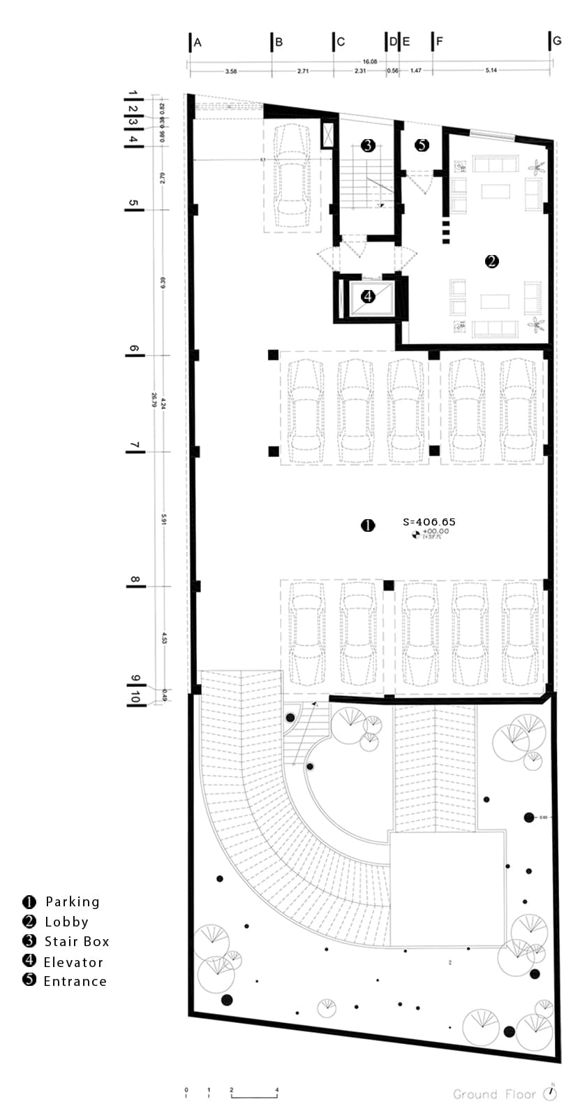
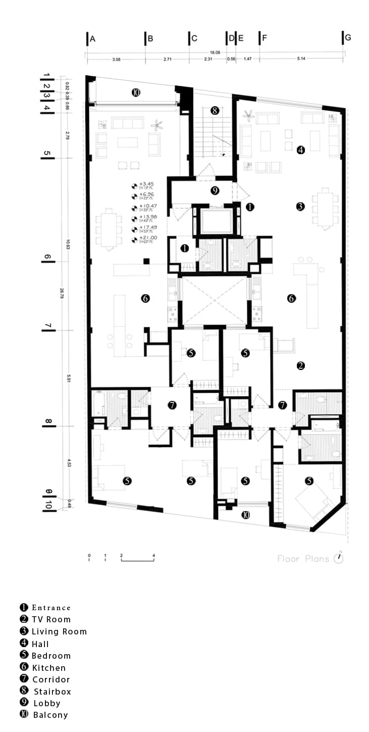
The kitchens are strategically placed near living areas for functionality. Multiple bathrooms are placed close to bedrooms for convenience.

The living room and hall are positioned towards the open side with large windows and a balcony, maximizing natural light while the TV room offers a semi-private entertainment space











The classical design elements seen in the facade (such as symmetry and arches) translate into an organized, well-balanced floor plan and the balconies and large openings on the facade align with the main living areas, enhancing indoor-outdoor connectivity.





