
Lia1
Project Info
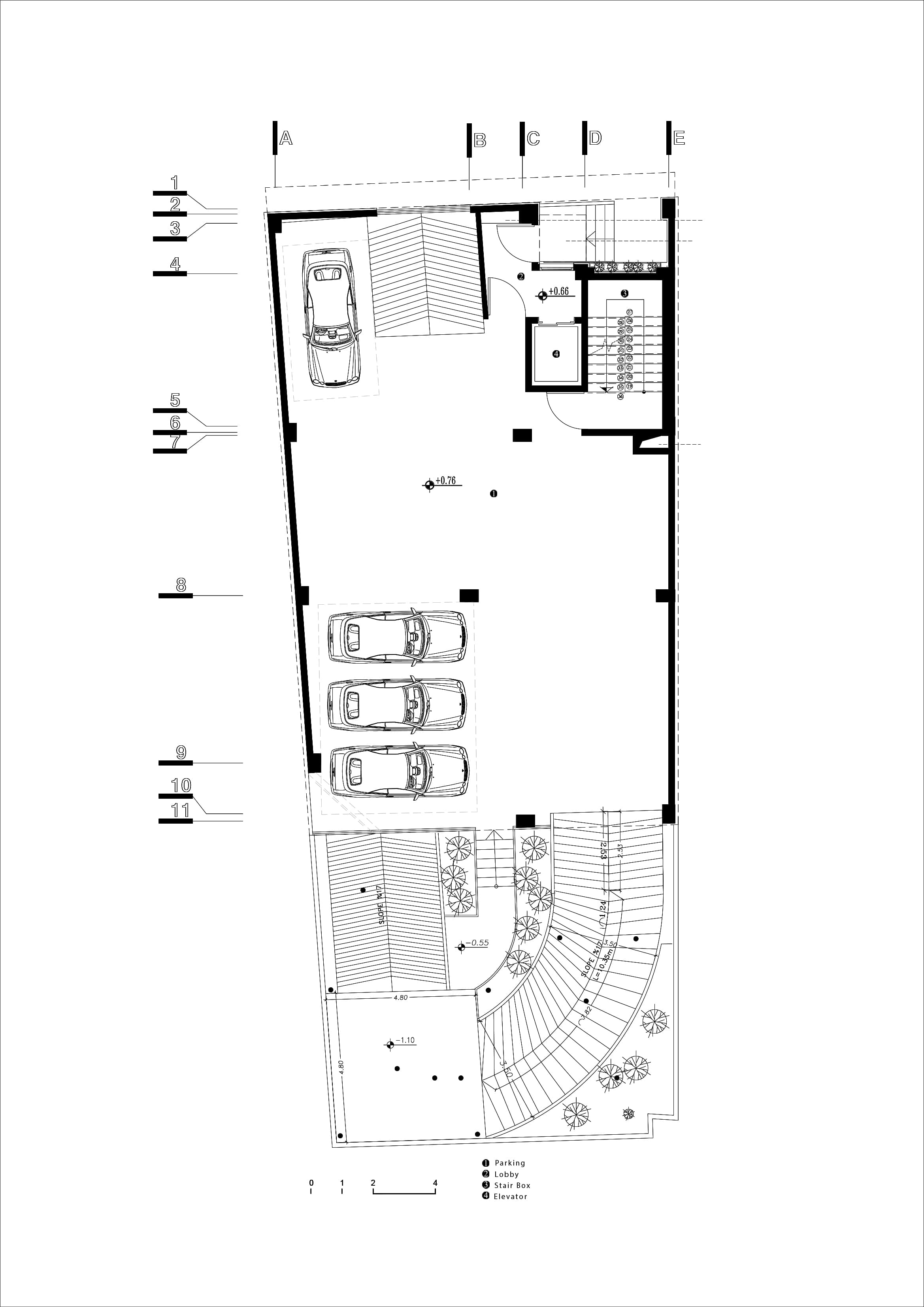
Plot Area
364 m2
Constructed Area
1736 m2
Location
No4,23th jahanara,Tehran,iran
Year
2019
The design idea
Tehran is a city of contradictions—chaotic yet rhythmic, dense yet yearning for openness, traditional yet persistently modern. This manifesto is born from a desire to reconcile these tensions through architecture that speaks to both the soul of the city and the aspirations of its people.
This project is an architectural response to Tehran’s evolving residential needs, prioritizing aesthetic refinement, sustainability, and urban connectivity. It serves as a model for future residential developments in the city, balancing tradition and innovation.

Given that the owners preferred the maximum amount of light and stone material in the facade's design, an effort was made to create a view able to have the required harmony with the neighborhood's and the region's overall perspective


Each window, each balcony, each void is an equal part of a whole, reflecting the egalitarian ideals embedded in the city’s collective housing culture.

We celebrate repetition not as monotony, but as order and calm within urban entropy.


Lia1 building rises, but it meets the street humbly. Transparent ground floors, shaded entrances, and tactile materials create a sense of invitation. This is not a tower of power but a layered community. Our building does not scream; it listens. It watches the street. It breathes with its users.

Each unit was given a distinctive character through the use of vertical bars in various facades and balconies. This was made possible by the variety of materials and indentations, which also improved the visual attractiveness. A distinctive ceiling design at the entrance gave the structure a warm feel.

The facade’s modular grid is not merely aesthetic—it is democratic.






Other Images








