bg

Atrisa2

Project Info


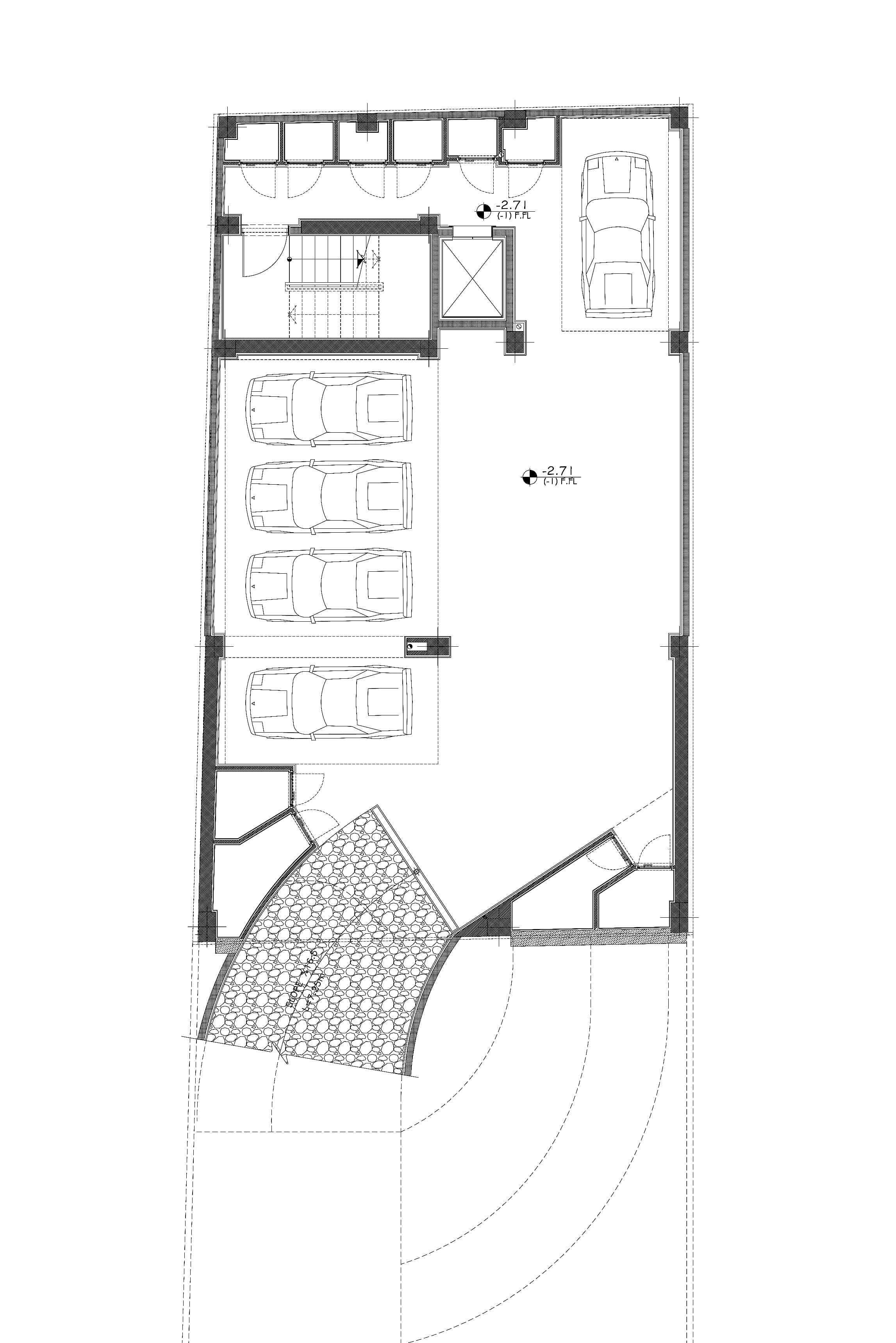
Plot Area

339 m2

Constructed Area

1638 m2

Location

Amir abad, Tehran

Year

2015-2017

The design idea

Simple shapes and a harmonic texture with the surrounding residential structures made up our strategy to design. Our strategy for designing facades has been to employ basic materials that blend in with the neighboring buildings' façade patterns. In order to prevent creating confusion with the surrounding texture, the unit's design avoids combining different materials and shapes.

We attempted to add movement to the motif by incorporating curves into the eastern section and balconies. We also sought to create a contrast between the cream color of the thermo wood and the neutral brick by taking vertical louvers into consideration.

Image 10
Image 10

Each façade's stud-shaped pieces provide horizontal gaps that visually prevent the façade from becoming too tall.

Image 10Image 10Image 10Image 10
Image 10

The user has the ability to spin these louvers around the axis to regulate sight or produce shadows. The gap made by the balconies and the positioning of these louvers in the center of the structure highlighted this perspective.

Image 10

Depending on the placement of the balconies and the floor divisions, Louvre and vertical wooden canopies are used for shade and visibility control, generating curve in the forms to generate dynamic in the division.

Image 10
Image 10

The user has the ability to spin these louvers around the axis to regulate sight or produce shadows. The gap made by the balconies and the positioning of these louvers in the center of the structure highlighted this perspective.

Image 10Image 10
Image 10

Each façade's stud-shaped pieces provide horizontal gaps that visually prevent the façade from becoming too tall.